Home
Chi siamo
Servizi
Portfolio
Allestimenti
Commerciale
Residenziale
Borghi
Arredo su misura
News
Contatti
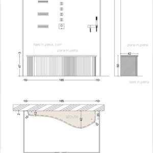
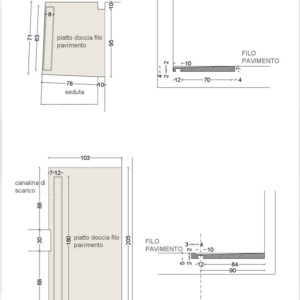
Pietra
–
PREV PAGE
NEXT PAGE